Beautifully presented and thoughtfully updated, this double-storey brick 3 bedrooms residence combines modern finishes, versatile living areas with a contemporary self-contained retreat and a convenient location. Positioned just walking distance to both Wiley Park and Punchbowl train stations, and moments from Punchbowl’s shopping precinct, this home offers exceptional lifestyle appeal for families seeking space and comfort.
Key Features:
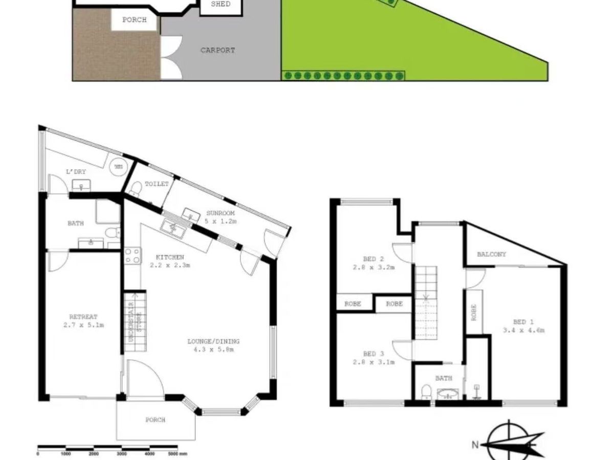
- Spacious self-contained retreat
- Entire home freshly painted with updated flooring throughout – stylish new tiles downstairs and floating timber floorboards upstairs.
- Open- plan living and dining area with abundant natural light, complemented by a modern kitchen featuring splashback, cabinetry and benchtops.
- Nature light filled sunroom opening out to the backyard, accompanied by a second downstairs bathroom with shower.
- Three generously sized bedrooms, all with mirrored built- in wardrobes; master bedroom with balcony.
- Two full bathrooms plus additional guest facilities for family convenienc- Pergola, carport and shed, plus an undercover entertaining area and landscaped garden for family to enjoy and entertain.
- Short stroll to Parry Park, a large green reserve featuring walking paths, open sports fields and a modern children’s playground – ideal for families and outdoor activities.
This ready to move- in home blends practical modern updates with multiple living and entertaining zones, creating the perfect setting for families looking for comfort and convenience. (Furniture NOT Included)
Disclaimer: All information contained herein is gathered from sources we believe to be reliable. However, we cannot guarantee its accuracy; we do not accept any responsibility for its accuracy and do no more than pass it on. Any interested persons should rely on their own enquiries.
Features
Floor Plan
Floorplan 1







